08:35 Винодельня Шато Фожер | |
Новая винодельня Шато Фожер. Фото (с) Philippe Caumes
тип: проект
место: Сент-Эмильон, Франция
функциональный тип: Инженерно-промышленный, Завод
проектирование: 2005
реализация: 2007—09.2009
архитектор: Марио Ботта
ссылки: официальный сайт Шато Фожер
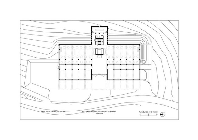
На трех этажах основной части здания расположены помещения для производства и хранения вина, на трех ярусах башни - лаборатории и офисы.
Фасады бетонной постройки облицованы плитами местного камня.
Новая винодельня Шато Фожер. Фото (с) Philippe Caumes
http://archi.ru
| |
| Категория: Архитектура,дизайн. | Просмотров: 1039 | | |
Новая винодельня Шато Фожер. Фото (с) Philippe Caumes
тип: проект
место: Сент-Эмильон, Франция
функциональный тип: Инженерно-промышленный, Завод
проектирование: 2005
реализация: 2007—09.2009
архитектор: Марио Ботта
ссылки: официальный сайт Шато Фожер
На трех этажах основной части здания расположены помещения для производства и хранения вина, на трех ярусах башни - лаборатории и офисы.
Фасады бетонной постройки облицованы плитами местного камня.
Новая винодельня Шато Фожер. Фото (с) Philippe Caumes
http://archi.ru